Centre de loisirs, Plan d’Orgon.
Création d'un centre de loisirs à Plan d'Orgon .
Lieux :
Plan d'Orgon (13)
Maître d'Ouvrage :
Mairie de Plan d'Orgon
Maîtrise d’œuvre :
Dieu & Bicho Architectes (mandataire)
Missions :
Mission complète loi MOP
État :
Avant-Projet
Coût :
-
Surface :
-

Centre de loisirs à Plan d’Orgon | Plan d’Orgon | FR

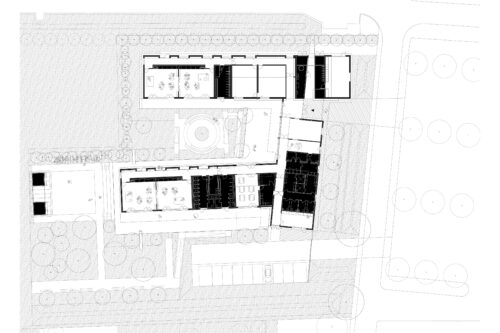
À Plan d’Orgon, le centre de loisirs s’implante à la lisière de la ville, dans la continuité d’un tissu pavillonnaire récent établi sur d’anciennes terres agricoles.
Le projet s’appuie sur les haies existantes, vestiges de ce paysage productif, dont il prolonge les tracés, en densifiant et en préservant ce qui peut l’être.

L’implantation reprend cette logique agricole : s’abriter des vents, s’ouvrir à la lumière, et créer des espaces extérieurs protégés et tempérés.
Les volumes sont simples et lisibles, réalisés avec des matériaux et des mises en œuvre ordinaires. L’écriture est volontairement sobre, ancrée dans le paysage du quotidien ; l’architecture protège, abrite et régule.

Le paysage structure le projet autant que le bâti.
Il organise les usages, accompagne les parcours et participe au confort climatique. Les cours sont largement plantées et pensées comme des sols vivants plutôt que comme des espaces inertes : potager, verger, ombrage et biodiversité.

Le projet recherche un équilibre pragmatique entre bâti et végétal, entre protection et ouverture, entre usage quotidien et simplicité constructive.

Equipe : Cabinet Morere, Betso, Bet Verdier et C2A

Visualisation :  Pablo Garcia

Collaboration maquette et éléments graphiques : Zack Hassoun, Maxime Giraud

error: Content is protected !!